家是能卸下所有疲惫、安放情绪的温柔港湾。本案屋主一直期望能拥有一个这样的空间——干净、通透、有序,能让自己在忙碌的生活里,找到一份松弛与安宁,这便是屋主对家最朴素也最坚定的期待。
这套简约风的设计方案,整体以低饱和浅色系为基底,让家的每一处都服务于生活,每一寸都藏着舒适与心意,摒弃冗余装饰,只保留最实用的功能与最纯粹的美感,在干净有序的空间里,享受三餐四季的安稳。
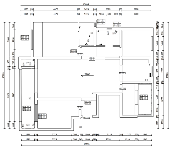
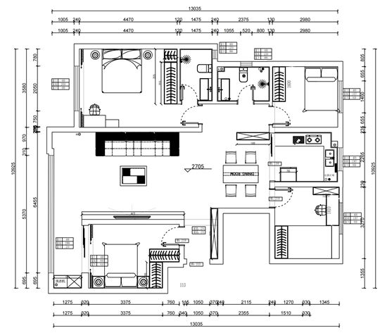
户型图

?原始户型图
?平面布置图

客厅
客厅以经典黑白灰为主调,勾勒出简约而高级的空间气质。没有多余装饰,利落的线条与干净的色块相互呼应,整体通透开阔,视觉上舒展又大气。



柔和光线透过大面采光区自由漫入,明暗层次自然过渡,让空间多了几分温润质感。开放式布局打破边界感,搭配简约软装与细腻材质,静而不冷、简而不空。


餐厅
餐厅没有多余的装饰,以简洁的线条和舒适的布局,营造出轻松自在的用餐氛围。柔和的光线洒落在餐桌之上,让日常的一餐一饭都变得温馨治愈。



主卧
主卧以温柔的暖色系为主调,柔和的色调包裹整个空间,一踏入便被满满的温馨与舒适包围。

床尾搭配斗柜与梳妆台一体设计,收纳充足、整洁有序,日常护肤梳妆、衣物收纳都能轻松满足,实用又不占空间。

次卧
次卧采用床柜一体的定制设计,将睡眠与收纳完美结合,整洁利落又节省空间。窗前位置打造书桌+书柜组合,采光充足,视野通透。


次卧
南向的次卧和大阳台连接,柔和的光线与细腻的材质,营造出安静又放松的氛围。

次卧
在这里,不必匆忙,不必逞强,只管安心入眠、静静独处。

申请0元装修方案一对一定制服务
- ㎡
今日还剩16免费名额
- 5分钟前刘先生方案已发送
- 16分钟前陈先生方案已发送
- 28分钟前李先生方案已发送
- 1小时12分前刘小姐方案已发送
- 1分钟前王先生方案已发送
- 37分钟前吴小姐方案已发送




