法式从来不止一种风格,更是一种生活态度。将古典优雅融进现代日常,温柔、高级、治愈又安心,让家既有复古风情的浪漫底蕴,又满是烟火生活的温暖惬意,每一日都优雅从容。
业主心中的家,不是冰冷的元素堆砌,而是松弛、浪漫、自带氛围感的温柔秘境。柔和的弧形拱门婉转延伸,雕花线条轻盈不繁复,低饱和度的奶白与浅杏铺满全屋,复古石膏线勾勒轮廓,温润木质搭配软糯布艺软装,光影透过纱幔轻轻洒落,不追逐潮流的喧嚣,只偏爱经久耐看的经典格调,不求奢华繁复,只求居所自在舒心,藏得住浪漫,容得下安稳。
户型图

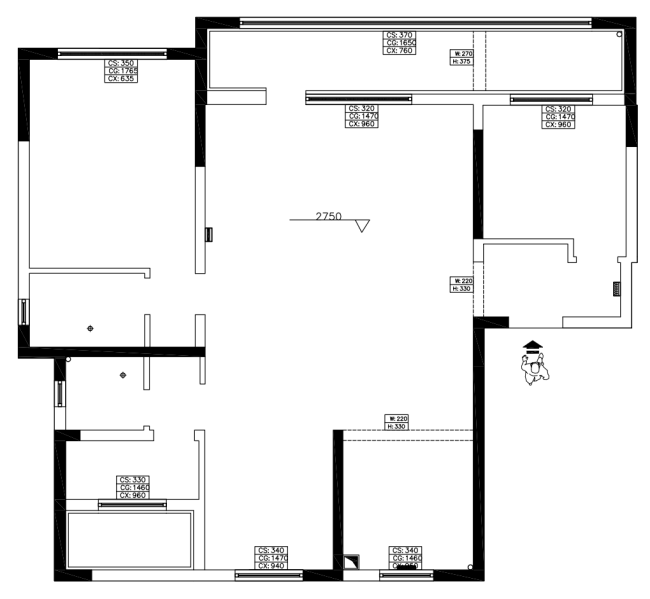
?原始户型图
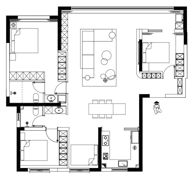
?平面布置图

┉?
玄关
入户玄关的悬浮柜体轻盈利落,视觉通透又显舒展。底部留白勾勒精致光影,搭配温润层次地台,高低错落之间氛围感十足。

┉?
客厅
全屋木纹砖通铺延展整体质感,温润肌理串联每个空间,自然拉近居家温度。搭配极简无主灯吊顶,摒弃繁杂造型,仅用柔和筒灯均匀漫光,光线温润不刺眼,全屋光影干净高级。


电视墙用碎花壁布晕染细腻雅致的纹理,悄然勾勒浪漫氛围感。沙发背景用精致石膏线勾勒立体层次,简约中自带轻奢韵味。墙面嵌入式壁龛展示柜,藏露有度,摆件与藏品有序陈列,点缀空间格调。


┉?
餐厨
餐厅用岛台衔接餐桌,构成舒展的用餐动线,圆柱形桌腿线条温柔又稳固,撑起空间精致质感。顶部一盏飞碟灯温柔垂落,柔光均匀洒在整个餐区,氛围感瞬间拉满。



U型厨房用超白玻吊轨门做隔断,三餐烟火于此沉淀,在精致极简的格调里,享受每一餐的温柔仪式感。

┉?
主卧
主卧以奶油白打底,揉入一抹清新柔和的绿意,温柔撞色舒缓治愈,整体氛围干净澄澈,清爽雅致又自带温婉气韵。
床尾依托墙体定制嵌入式衣柜,隐形极简不占地,藏纳四季衣物杂物,收纳规整利落,视觉整洁通透。


┉?
次卧
低饱和度配色安抚心绪,奶油的温柔邂逅极简造型,兼顾美感与实用,关上房门独享一方静谧私域,每晚入眠皆是舒心安稳,把温柔与安心妥帖藏于日常。
申请0元装修方案一对一定制服务
- ㎡
今日还剩16免费名额
- 5分钟前刘先生方案已发送
- 16分钟前陈先生方案已发送
- 28分钟前李先生方案已发送
- 1小时12分前刘小姐方案已发送
- 1分钟前王先生方案已发送
- 37分钟前吴小姐方案已发送




